Steenenstraat 41
Steenenstraat 41
Steenenstraat 41
Steenenstraat 41
Steenenstraat 41

Steenenstraat 41

Oud-Beijerland

prijs op aanvraag

Interesse?

Neem contact met ons op!

Neem contact met ons op

Omschrijving

Per direct beschikbaar! Ruime opslagruimtes in de Steenenstraat, Oud-Beijerland, centraal gelegen in het dorp! Of je nu spullen voor privégebruik of bedrijfsmateriaal wilt opslaan, wij hebben de ruimte voor jou!

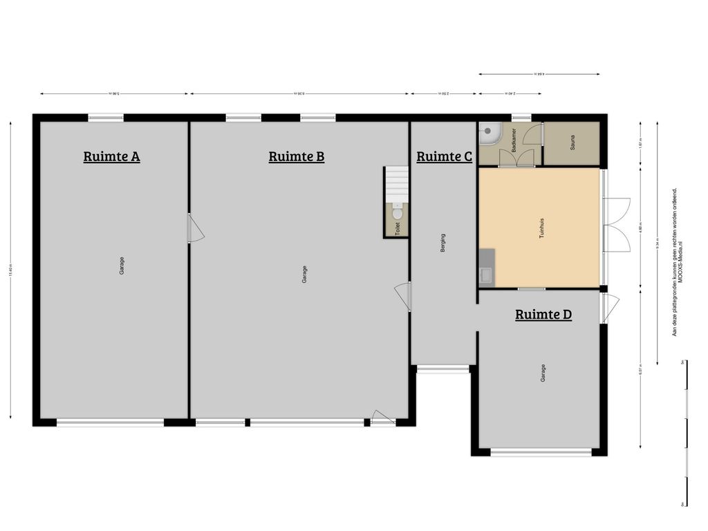
Beschikbare ruimtes:
Ruimte A: 57 m² - € 495 per maand (VERHUURD)
Ruimte B: 95 m² - € 695 per maand (VERHUURD)
Ruimte C: 22,5 m² - €170 per maand (VERHUURD)
Ruimte D: 27 m² - € 225 per maand (VERHUURD)
Ruimte E: 20 m² - € 175 per maand (VERHUURD)
Ruimte F: 56 m² - € 415 per maand

Huurprijzen zijn exclusief BTW.

Huurtermijn
In overleg.

Omzetbelasting:
Over de huurprijs zal BTW in rekening worden gebracht. Indien BTW niet in rekening kan worden gebracht, geldt een nader te bepalen opslag op bovengenoemde huurprijs.

Betaling
De betaling van de huursom inclusief BTW dient te geschieden per vooruitbetaling per maand.

Huurovereenkomst
De te sluiten huurovereenkomst zal worden opgemaakt op basis van het ROZ-model (Raad van Onroerende Zaken) kantoorruimte en andere bedrijfsruimte in de zin van artikel 7:230a BW, vastgesteld 30-01-2015 met bijbehorende Algemene Bepalingen gedeponeerd bij de griffie van de Rechtbank te Den Haag en op 17-02-2015 aldaar ingeschreven onder nummer 15/21.

Huuraanpassing
Jaarlijks, voor het eerst één jaar na datum huuringang, op basis van de wijziging van het prijsindexcijfer volgens de consumentenprijsindex (CPI) reeks CPI-Alle Huishoudens (2015=100), gepubliceerd door het Centraal Bureau van de Statistiek (CBS).

Zekerheidstelling
Bankgarantie of waarborgsom ter grootte van een betalingsverplichting van drie maanden, inclusief servicekosten en BTW.

Datum van oplevering
In overleg/ per direct.

Deze informatie is door ons met de nodige zorgvuldigheid samengesteld. Onzerzijds wordt echter geen enkele aansprakelijkheid aanvaard voor enige onvolledigheid, onjuistheid of anderszins, dan wel de gevolgen daarvan. Alle opgegeven maten en oppervlakten zijn indicatief.
Lees meer

Kenmerken

Overdracht

Huurprijs
prijs op aanvraag
Status
beschikbaar
Aanvaarding
in overleg

Bouw

Hoofdbestemming
bedrijfsruimte

Bedrijfshal

Oppervlakte
277 m²
In units vanaf
20 m²

Plattegronden

Locatie

Meer informatie?