Rudolf Steinerpad 8

Rudolf Steinerpad 8

OUD-BEIJERLAND

verkocht

Ook uw woning of bedrijfspand succesvol verkopen? Neem dan contactmet ons op

Gratis waardebepaling

Omschrijving

Aan de rand van Oud-Beijerland, in de geliefde ‘Zoomwijck’, bevindt zich deze royale en uitstekend onderhouden twee-onder-een kapwoning met garage, een fraai aangelegde tuin en parkeergelegenheid op eigen terrein voor meerdere auto’s. De woning heeft een verzorgde uitstraling en ademt kwaliteit met een vernieuwde, uitgebouwde woonkeuken en een charmante overkapping. Een comfortabele en complete gezinswoning op een fijne plek nabij diverse voorzieningen.

INDELING

BEGANE GROND
Binnenkomst in de ruime hal met de trapopgang, meterkast en een moderne toiletruimte met wandcloset en fonteintje. Vanuit de hal is er toegang tot de garage en living.

De doordachte living profiteert van een prettige lichtinval dankzij de speelse erker aan de voorzijde. Het plafond is afgewerkt met glad stucwerk, terwijl de luxe PVC-vloer met vloerverwarming zorgt voor een aangename en onderhoudsvriendelijke basis. Via een elegante stalen deur is de keuken op subtiele wijze afgescheiden van de woonkamer.

De uitgebouwde woonkeuken is een heerlijke plek voor samenzijn, koken en genieten. De keuken is met aandacht voor detail gemoderniseerd en uitgevoerd in een wandopstelling met centraal kookeiland. De moderne inbouwapparatuur bestaat uit een koelkast, vriezer, combi-oven, warmhoudlade, koffiemachine, inductiekookplaat met geïntegreerde afzuiging, Quooker, vaatwasser én een luxueuze wijnkoeler. Middels de openslaande deuren, voorzien van plissé hordeuren, is de achtertuin toegankelijk.

De garage met lichtkoepel is voorzien van een overheaddeur, spoelbak en de aansluitingen voor de wasmachine en droger. Er is toegang tot de achtertuin middels een loopdeur.

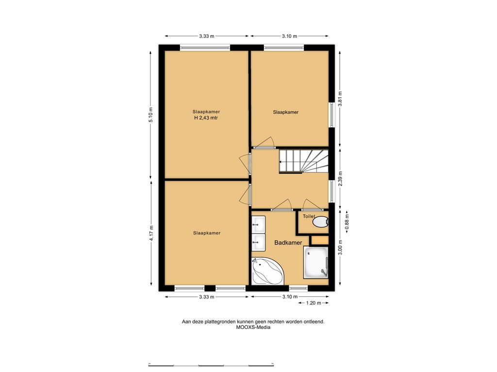
EERSTE VERDIEPING
De overloop biedt toegang tot 3 volwaardige slaapkamers, de badkamer, een separate toiletruimte en de trapopgang naar de 2e verdieping.

Twee slaapkamers bevinden zich aan de voorzijde van de woning. Alle slaapkamers zijn voorzien van PVC-vloeren, houten kozijnen en sunscreens.

De grijs getinte badkamer is volledig betegeld en smaakvol ingericht met een modern wastafelmeubel met dubbele wastafels, designradiator, hoekligbad en een uitgebreide stoomcabine voor complete ontspanning.

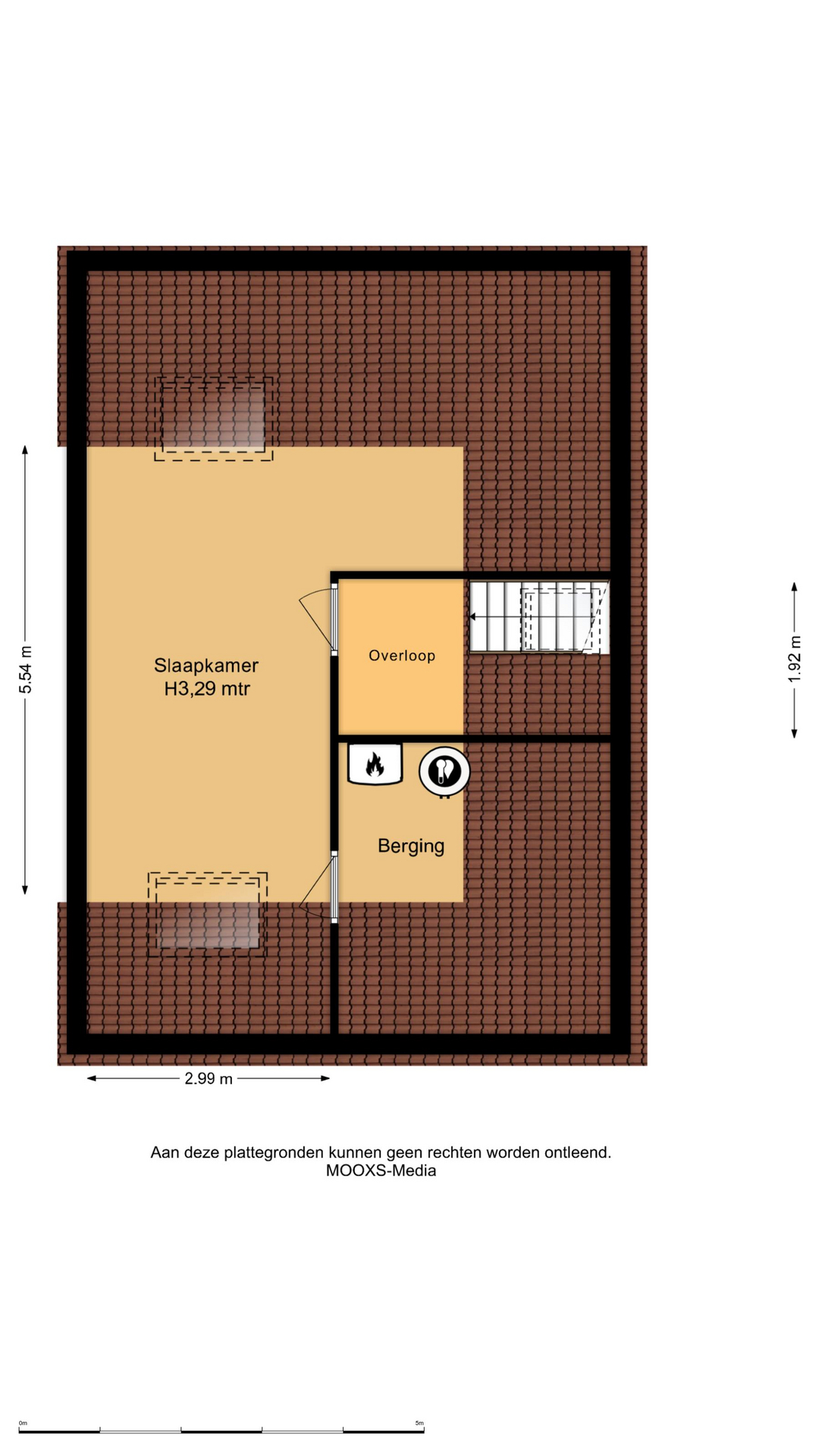
TWEEDE VERDIEPING
Overloop met kunststof dakraam van Velux die toegang geeft tot een bijzonder ruime slaap-/werkkamer.

Vanwege de slimme indeling met twee Velux-dakramen aan elkaars weerszijden, is deze ruimte eventueel perfect op te delen in twee separate slaapkamers. Er is toegang tot een aparte berging met de opstelplaats voor de cv-combiketel en zonneboiler, alsmede aansluitingen voor de wasmachine en droger.

TUIN
De achtertuin is fraai aangelegd op het noordoosten en voorzien van onderhoudsvriendelijke sierbestrating en -beplanting, achterom, strakke borders, een elektrisch zonnescherm, houten berging en chique overkapping, stijlvol afgesloten met glazen schuifdeuren. Dankzij de aanwezigheid van een sfeervolle houtkachel is het hier zelfs in de winter aangenaam vertoeven. Een tuin die alledaags uitnodigt tot ontspanning.

Aan de voorzijde van de woning zorgen de ruime voortuin en oprit voor een comfortabele afstand tot de straat en parkeergelegenheid op eigen terrein.

AFMETINGEN (CA.)
Voor de afmetingen verwijzen wij u graag naar de bijgevoegde plattegronden.

BIJZONDERHEDEN
Bouwjaar: 1994. Woonoppervlakte: 158 m². Perceeloppervlakte: 284 m². Bruto inhoud: 500 m³.

• Energielabel B
• Cv-combiketel (Nefit Trendline, 2020)
• Mechanische ventilatie (2001)
• Vloerverwarming begane grond
• Volledig geïsoleerd
• Houten kozijnen met dubbel glas (HR+ beglazing begane grond)
• Schilderwerk (2023)
• Keuken (2022)
• Toiletruimten (2017)
• Dakramen (Velux, 2024)
• Overkapping (2019)
• Sunscreens
• Op maat gemaakte jaloezieën en horren
• Buitenzonwering

LIGGING EN OMGEVING
De woning is ideaal gelegen aan de buitenrand van de wijk ‘Zoomwijck’. De wijk kenmerkt zich als rustig, groen, ruim van opzet en kindvriendelijk. Het kleinschalige winkelcentrum ‘De Beijerse Hof’ en ook het gezellige centrum met de winkels, horeca en terrassen zijn nabij. Scholen, sportaccommodaties, openbaar vervoer en de uitvalswegen zijn in de directe omgeving.

KADASTRALE GEGEVENS
Gemeente Oud-Beijerland, sectie H, nummer 1953, groot 2 aren en 84 centiaren.
Volle eigendom.

OPLEVERING
In overleg/ mei 2026.

Wij behartigen de belangen van de verkopende partij. Neem uw eigen NVM-aankoopmakelaar mee!

Deze informatie is door ons met de nodige zorgvuldigheid samengesteld. Onzerzijds wordt echter geen enkele aansprakelijkheid aanvaard voor enige onvolledigheid, onjuistheid of anderszins, dan wel de gevolgen daarvan. Alle opgegeven maten en oppervlakten zijn indicatief.
Lees meer

Kenmerken

Overdracht

Status
verkocht
Aanvaarding
in overleg

Bouw

Soort woning
woonhuis
Soort woonhuis
eengezinswoning
Type woonhuis
twee onder een kapwoning
Aantal woonlagen
3
Bouwvorm
bestaande bouw
Bouwjaar
1994
Huidige bestemming
woonruimte
Onderhoud binnen
goed_tot_uitstekend
Onderhoud buiten
goed_tot_uitstekend
Voorzieningen
mechanische ventilatie, buitenzonwering, dakraam, natuurlijke ventilatie
Isolatie
dakisolatie, muurisolatie, vloerisolatie, dubbel glas, volledig geisoleerd, hr glas

Energie

Energielabel
B
Verwarming
cv ketel, vloerverwarming gedeeltelijk
Warm water
cv ketel, zonneboiler
C.V.-ketel
gas gestookte combi-ketel uit 2020 van Nefit Trendline, eigendom

Oppervlakten en inhoud

Woonoppervlakte
158 m²
Perceeloppervlakte
284 m²
Inhoud
500 m³
Inpandige ruimte oppervlakte
20 m²
Bergruimte oppervlakte
13 m²

Indeling

Aantal kamers
5
Aantal slaapkamers
4

Buitenruimte

Ligging
aan rustige weg, in woonwijk
Tuin
achtertuin met een oppervlakte van 75 m² en is gelegen op het noordoosten

Garage / Schuur / Berging

Garage
aangebouwde stenen garage
Parkeergelegenheid
openbaar parkeren, op eigen terrein
Schuur/berging
vrijstaand hout

Foto's

Locatie

Downloads

Meer informatie?