Karel Doormanstraat 62

Karel Doormanstraat 62

OUD-BEIJERLAND

verkocht

Ook uw woning of bedrijfspand succesvol verkopen? Neem dan contactmet ons op

Gratis waardebepaling

Omschrijving

Gelegen in één van de meest geliefde en karakteristieke straten van Oud-Beijerland, op steenworp afstand van het bruisende centrum, presenteren wij met trots deze verrassend ruime en vrijstaande villa. Deze unieke woning combineert een charmante uitstraling met uitzonderlijk veel binnen- en buitenruimte.

De villa beschikt over een royale serre, een multifunctionele kantoorruimte, een grote opslagruimte en een fraai aangelegde tuin op een royaal perceel van maar liefst 947 m² eigen grond.

Indeling

Begane grond
U wordt verwelkomd in een stijlvolle ontvangsthal met een marmeren vloer en overvloedig daglicht. Hier vindt u toegang tot de meterkast, een praktische garderoberuimte, een ruime toiletruimte met zwevend toilet en een apart urinoir, evenals de trapopgang naar de verdieping.

De verrassend ruime woonkamer heeft een speelse indeling, mede dankzij de mooie erker, die aan de voorzijde van de vrijstaande woning is gelegen. Hierdoor zijn er meerdere zitplekken mogelijk.

Aansluitend is een royale eetkamer gerealiseerd in de latere uitbouw, waardoor het woonoppervlak optimaal benut wordt. Samen beslaat de woonkamer en eetkamer een indrukwekkende oppervlakte van circa 86 m².

De indrukwekkende keuken aan de achterzijde van de woning is een droom voor iedere kookliefhebber. Dankzij de royale opzet is er niet alleen ruimte voor koken, maar ook voor gezellig samenzijn. De keuken is voorzien van een uitgebreide hoeveelheid opbergkasten, een gezellige bar om aan te schuiven met een kop koffie of een goed glas wijn, en een compleet pakket aan hoogwaardige inbouwapparatuur. Het grote werkblad biedt volop ruimte voor het bereiden van maaltijden, terwijl de twee RVS spoelbakken, elk uitgerust met een eigen Quooker-kraan, zorgen voor ultiem gebruiksgemak.

Aansluitend bevindt zich de prachtig aangelegde serre – een ware eyecatcher van deze woning. Deze ruimte is volledig ingericht met een stijlvolle plavuizenvloer voorzien van comfortabele vloerverwarming. De glazen schuifdeuren rondom zorgen voor een naadloze verbinding tussen binnen en buiten, terwijl het glazen dak met elektrisch bedienbare sunscreens zorgt voor licht en verkoeling naar wens. De houtkachel maakt het tot een heerlijke plek om het hele jaar door te genieten.

De royale bijkeuken is een waardevolle aanvulling op het wooncomfort. Deze ruimte is niet alleen groot, maar ook slim ingedeeld met ingebouwde kasten die zorgen voor volop opbergmogelijkheden. De brede ingebouwde keukenunit is uitgerust met diverse inbouwapparatuur en een luxe granieten aanrechtblad – zowel stijlvol als functioneel. Daarnaast zijn er aansluitingen voor zowel wasmachine als droger, waarmee deze ruimte zich uitstekend leent als was- en provisieruimte.

Via een tussenportaal is de opslaghal te bereiken. De ruimte is riant en bestaat uit 2 delen. De grootste hal is ingericht met elektrisch overheaddeur, heteluchtverwarming, verlichting en raampartijen met veel lichtinval. De kleinere heeft een aparte toiletruimte met een extra douchegelegenheid.

Een andere hal geeft toegang tot een toiletruimte, een kantoorruimte en er is een vaste trap naar de 1e verdieping, waar een grote opbergruimte is.

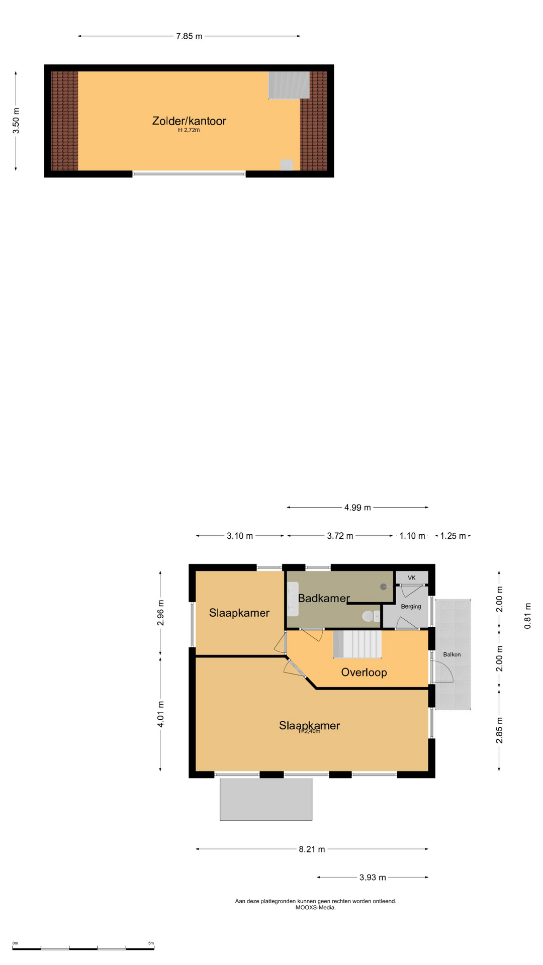
Eerste verdieping
In deze woning biedt de overloop toegang tot twee royale slaapkamers en een uitstekend afgewerkte badkamer. De ouderslaapkamer is voorzien van een brede ingebouwde kastenwand met spots, waardoor er voldoende opbergruimte en sfeerverlichting is.

De badkamer is ruim bemeten en beschikt over een breed wastafelmeubel met twee waskommen en muurkranen, een zwevend toilet, en een luxe inloopdouche met zowel een handdouche als een aparte stortdouche. Een bijzondere toevoeging aan de douche is de Sunshower, die met infrarood warmte zorgt voor ontspanning, verlichting van pijnlijke spieren en stimulatie van de doorbloeding. De comfortabele vloerverwarming en een stijlvolle designradiator dragen bij aan het comfort en de luxe van deze ruimte.

Tweede verdieping
De verdieping is verrassend ruim en praktisch ingedeeld. Hier bevinden zich twee royale slaapkamers, een separate toiletruimte en een handige bergkast met de opstelplaats voor de Cv-combiketel. Dankzij de aanwezigheid van meerdere dakkapellen profiteren de ruimtes van extra lichtinval en een aangename ruimtelijkheid. Bovendien zorgt de airconditioning voor een optimaal klimaat.

Tuin
Het perceel heeft een oprit en biedt parkeerplek aan meerdere voertuigen (ca. 5/6). De tuin is ingericht met sierbestrating, een heerlijke binnenplaats, volwassen en mooie beplanting, elektravoorzieningen, verlichting en wateraansluitingen.

Afmetingen (ca.)
Voor de afmetingen van de woning verwijzen wij u graag naar de bijgevoegde plattegronden.

Bijzonderheden
Bouwjaar: 1959. Perceelgrootte: 947 m². Woonoppervlakte: ca. 262 m². Garage 280 m². Kelder 8 m². Berging: 27 m².

• Energielabel C
• Cv-combiketel (Nefit Topline Compact, 2008)
• Alarmsysteem aanwezig
• Badkamer 2022
• Keuken 2022
• Hardhouten kozijnen met draai-/kiepramen (HR isolatie glas)
• Ruime kelder
• Rolluiken, sunscreens elektrisch aanwezig

Kadastrale gegevens
Gemeente Oud-Beijerland, sectie D, nummer 3826, groot 9 aren en 47 centiaren.
Volle eigendom.

Oplevering
In overleg.

Wij behartigen de belangen van de verkopende partij. Neem uw eigen NVM-aankoopmakelaar mee!

Deze informatie is door ons met de nodige zorgvuldigheid samengesteld. Onzerzijds wordt echter geen enkele aansprakelijkheid aanvaard voor enige onvolledigheid, onjuistheid of anderszins, dan wel de gevolgen daarvan. Alle opgegeven maten en oppervlakten zijn indicatief.
Lees meer

Kenmerken

Overdracht

Status
verkocht
Aanvaarding
in overleg

Bouw

Soort woning
woonhuis
Soort woonhuis
villa
Type woonhuis
vrijstaande woning
Aantal woonlagen
3
Bouwvorm
bestaande bouw
Bouwjaar
1959
Huidige bestemming
woonruimte
Onderhoud binnen
goed
Onderhoud buiten
goed
Voorzieningen
mechanische ventilatie, alarminstallatie, rolluiken, buitenzonwering, airconditioning
Isolatie
dakisolatie, dubbel glas, hr glas

Energie

Energielabel
C
Verwarming
cv ketel, vloerverwarming gedeeltelijk, houtkachel
Warm water
cv ketel
C.V.-ketel
gas gestookte combi-ketel uit 2008 van Nefit Topline Compact, eigendom

Oppervlakten en inhoud

Woonoppervlakte
262 m²
Perceeloppervlakte
947 m²
Inhoud
2.330 m³
Inpandige ruimte oppervlakte
315 m²
Buitenruimte oppervlakte
5 m²

Indeling

Aantal kamers
5
Aantal slaapkamers
4

Buitenruimte

Ligging
aan rustige weg, in woonwijk
Tuin
tuin rondom

Garage / Schuur / Berging

Garage
aangebouwde stenen garage
Parkeergelegenheid
openbaar parkeren, op eigen terrein

Foto's

Locatie

Downloads

Meer informatie?