Croonenburgh 34

Croonenburgh 34

OUD-BEIJERLAND

verkocht

Ook uw woning of bedrijfspand succesvol verkopen? Neem dan contactmet ons op

Gratis waardebepaling

Omschrijving

** Klusobject **
Bovenwoning met commerciële ruimte (winkelruimte) op de begane grond en aanpandige garage op een perceel van 200 m2 eigen grond.

Indeling

Woonhuis:
Begane grond
Middels de entree aan de zijkant van het object is er toegang tot een meterkast, een kelder en een trapopgang naar de 1e verdieping.

1e verdieping
Via een vaste trap is de woonverdieping bereikbaar. Vanuit de hal met een bergkast is er toegang tot een toiletruimte, een woonkamer en een dichte keuken.

De woonkamer heeft een sfeervolle open haard en veel lichtinval door de grote raampartijen.

De dichte keuken heeft een wandopstelling en is voorzien van een 4-pits gaskookplaat, een koelkast met een vriesvak, een oven en een afzuigkap. Tevens bevindt zich hier de aansluiting voor de wasmachine.

2e verdieping
Vanuit de overloop is er toegang tot 3 slaapkamers en een badkamer. Alle slaapkamers zijn voorzien van een vaste kast.

De volledig betegelde badkamer is voorzien van een douchecabine, een wastafel en een radiator.

De overloop beschikt tevens over een vlizotrap welke toegang geeft naar de bergzolder waar zich de opstelplaats van de CV-combiketel bevindt.

Winkelruimte:
Begane grond
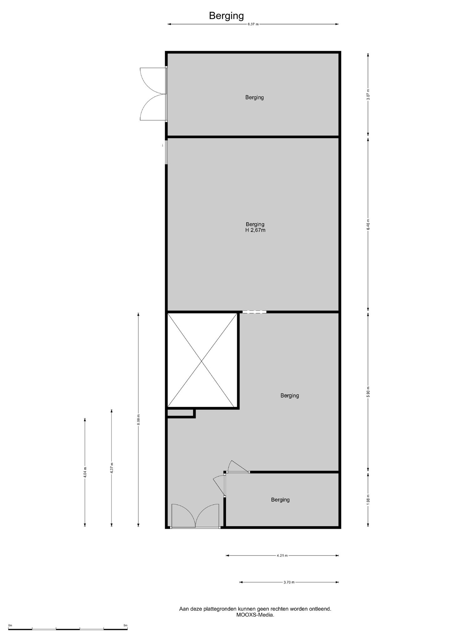
Via door voorzijde van het object is er toegang tot de winkelruimte (ca. 40 m2). Deze ruimte heeft een etalage en is afgewerkt met een tegelvloer. Naast de winkelruimte is er nog een royale bergruimte (ca. 40 m2) aanwezig. Beide ruimtes beschikken over elektra.

Naast de bergruimte is er een aanpandige stenen garage (ca. 20 m2) met water en elektra.

Afmetingen (ca.)
Voor de afmetingen verwijzen wij u graag naar de bijgevoegde plattegronden.

Bijzonderheden (ca.)
Bouwjaar: 1964. Woonoppervlakte: ca. 103 m2. Winkelruimte ca. 40 m2. Bergruimte ca. 40 m2. Garage ca. 20 m2. Perceelgrootte: 200 m2. Bruto inhoud: 350 m3.

• CV-combiketel Vaillant (2002);
• Energielabel F;
• Bestemming ‘Detailhandel’;
• Over winkelruimte 10,4% overdachtsbelasting.

Kadastrale gegevens
Gemeente Oud-Beijerland, sectie D, nummers 3971, groot 2 aren.
Volle eigendom.

Oplevering
Per direct / in overleg.

Wij behartigen de belangen van de verkopende partij. Neem uw eigen NVM-aankoopmakelaar mee!

Deze informatie is door ons met de nodige zorgvuldigheid samengesteld. Onzerzijds wordt echter geen enkele aansprakelijkheid aanvaard voor enige onvolledigheid, onjuistheid of anderszins dan wel de gevolgen daarvan. Alle opgegeven maten en oppervlakten zijn indicatief. Van toepassing zijn de NVM voorwaarden.
Lees meer

Kenmerken

Overdracht

Status
verkocht
Aanvaarding
direct

Bouw

Soort woning
woonhuis
Soort woonhuis
eengezinswoning
Type woonhuis
hoekwoning
Aantal woonlagen
3
Bouwvorm
bestaande bouw
Bouwjaar
1964
Huidige bestemming
woonruimte
Onderhoud binnen
slecht_tot_matig
Onderhoud buiten
matig_tot_redelijk
Isolatie
gedeeltelijk dubbel glas

Energie

Energielabel
F
Verwarming
cv ketel
Warm water
cv ketel
C.V.-ketel
gas gestookte combi-ketel uit 2002 van Vaillant, eigendom

Oppervlakten en inhoud

Woonoppervlakte
103 m²
Perceeloppervlakte
200 m²
Inhoud
350 m³
Inpandige ruimte oppervlakte
115 m²

Indeling

Aantal kamers
4
Aantal slaapkamers
3

Garage / Schuur / Berging

Garage
aangebouwde stenen garage
Parkeergelegenheid
openbaar parkeren
Schuur/berging
aangebouwd steen

Foto's

Locatie

Downloads

Meer informatie?