Bachlaan 17

Bachlaan 17

OUD-BEIJERLAND

verkocht

Ook uw woning of bedrijfspand succesvol verkopen? Neem dan contactmet ons op

Gratis waardebepaling

Omschrijving

In de gewilde woonwijk ‘Poortwijk II’ ligt deze verrassend ruime geschakelde woning met parkeergelegenheid op eigen terrein, 4 slaapkamers, een royaal dakterras en een jacuzzi in de achtertuin! De woning is in 2001 gebouwd en zeer goed onderhouden. Gelegen op een perceel van 224 m² eigen grond, is het hier heerlijk comfortabel wonen.

Indeling

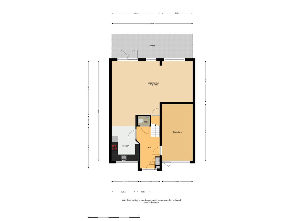
Begane grond
Bij binnenkomst komt men terecht in een ruime hal, die toegang biedt tot de meterkast, een nette volledig betegelde toiletruimte met zwevend toilet en fonteintje, de garage en de trapopgang. Vanuit de hal zijn tevens de ruime living en open keuken te bereiken.

De garage is nu ingericht als bijkeuken maar kan tevens ingericht worden als praktijk-/ werkruimte. Deze ruimte is voorzien van elektra, water en verwarming.

De open keuken is aan de voorzijde van de woning gelegen en beschikt over een inductiekookplaat met afzuiging, een vaatwasser, een koelkast en een oven. Het geheel is afgewerkt met een nette houten vloer.

De sfeervolle woonkamer is royaal en ingericht met een eetgedeelte en een handige trapkast. De grote raampartijen zorgen voor veel natuurlijk lichtinval en bieden mooi zicht op de verzorgde achtertuin. De tuin is middels openslaande deuren te bereiken. De woonkamer is voorzien van airconditioning.

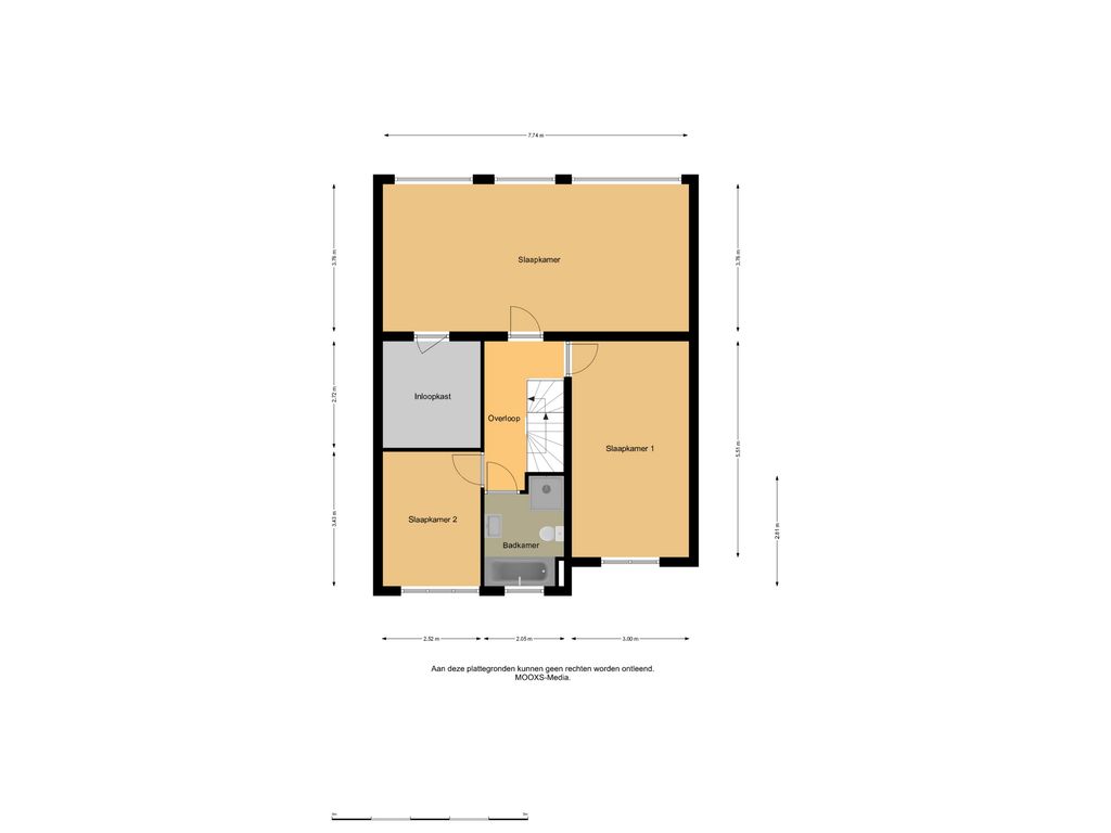
1e verdieping
Hier komt men terecht op de overloop, die toegang biedt tot 3 slaapkamers en de badkamer. De slaapkamer aan de achterzijde van de woning is zeer ruim van opzet en beschikt over een walk-in closet, airconditioning en een Frans balkon. Hier is eventueel eenvoudig een extra slaapkamer te realiseren.

De badkamer is volledig betegeld en voorzien van douchegelegenheid, een ligbad, een 2e toilet, een wastafel en een plafondlamp met verwarmfunctie.

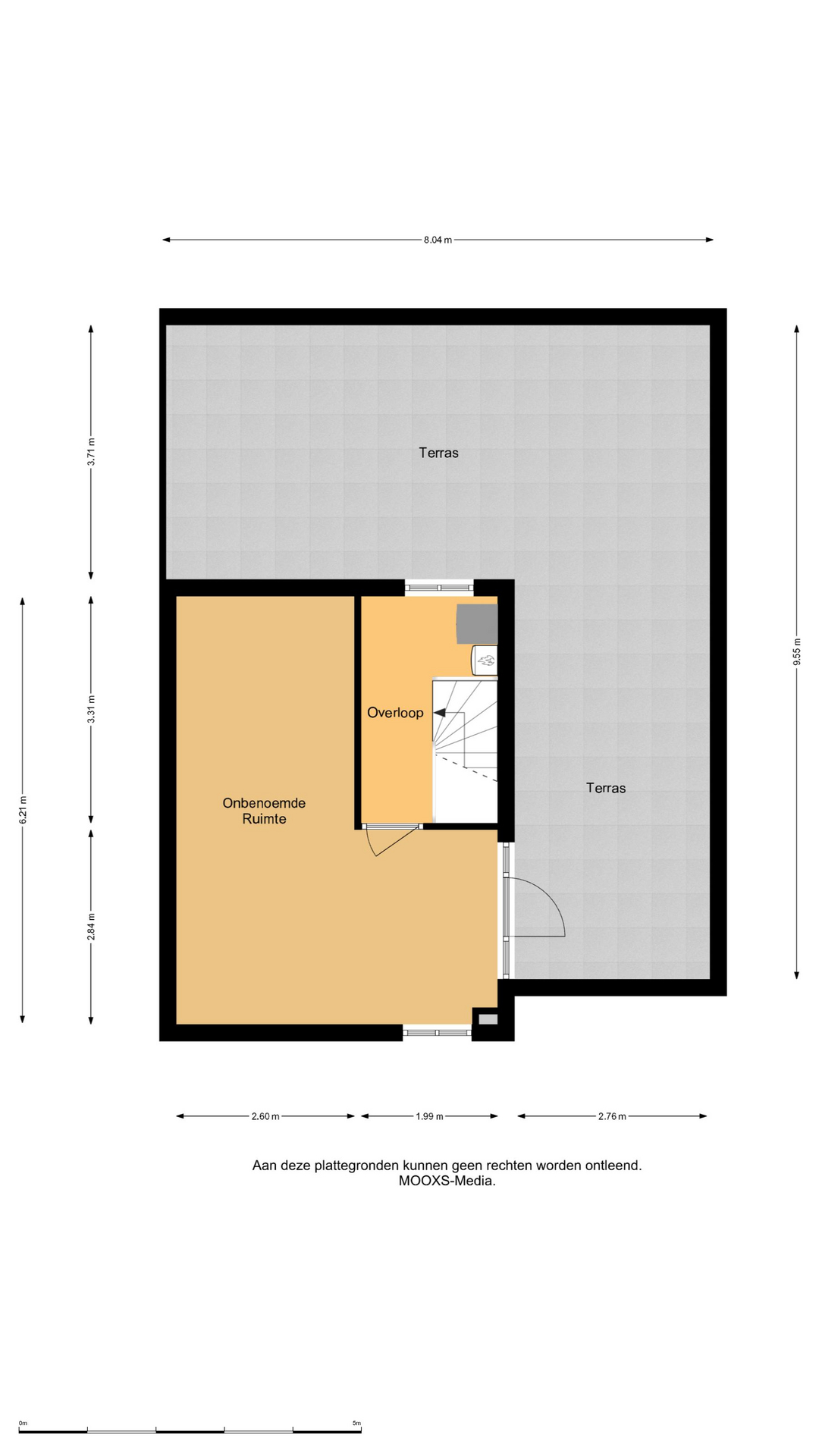
2e verdieping
Middels een vaste trap komt men terecht op de overloop met de opstelplaats voor de Cv-combiketel en aansluitingen voor de wasmachine en droger. Via de overloop is de 4e slaapkamer te bereiken met toegang tot het royale dakterras, waar u perfect van de zon kunt genieten.

Tuin
De voortuin is afgewerkt met sierbestrating en beplanting en biedt parkeergelegenheid op eigen terrein. De brede achtertuin met achterom is gelegen op het zonnige zuiden en is voorzien van een jacuzzi en een houten tuinhuis. Verder is er een elektrisch bedienbaar zonnescherm aanwezig en is er voldoende privacy door de vernieuwde houten erfafscheiding.

Afmetingen (ca.)
Voor de afmetingen verwijzen wij u graag naar de bijgevoegde plattegronden.

Bijzonderheden
Bouwjaar: 2001. Perceelgrootte: 224 m². Woonoppervlakte: 183 m². Bruto inhoud: 571 m²
Dakterras: 45 m²

• Energielabel A
• Cv-combiketel (Remeha Calenta 2016)
• Mechanische ventilatie
• Volledig geïsoleerd
• Hout- en laminaatvloeren
• Rolluiken aan achterzijde van de woning
• Airconditioning woon- en slaapkamer
• Buitenzonwering
• Draai-kiep ramen
• Elektrische laadpaal
• Glasvezel internet

Poortwijk heeft verschillende voorzieningen zoals scholen, supermarkt en sportfaciliteiten in de directe omgeving.
Het is een rustige en kindvriendelijke wijk, wat het populair maakt bij gezinnen en ouderen die graag in een prettige omgeving willen wonen.

Kadastrale gegevens
Gemeente Oud-Beijerland, sectie K, nummer 1322, groot 2 aren en 24 centiares.

Oplevering
In overleg.

Wij behartigen de belangen van de verkopende partij. Neem uw eigen NVM-aankoopmakelaar mee!

Deze informatie is door ons met de nodige zorgvuldigheid samengesteld. Onzerzijds wordt echter geen enkele aansprakelijkheid aanvaard voor enige onvolledigheid, onjuistheid of anderszins, dan wel de gevolgen daarvan. Alle opgegeven maten en oppervlakten zijn indicatief.
Lees meer

Kenmerken

Overdracht

Status
verkocht
Aanvaarding
in overleg

Bouw

Soort woning
woonhuis
Soort woonhuis
herenhuis
Type woonhuis
geschakelde woning
Aantal woonlagen
3
Bouwvorm
bestaande bouw
Bouwjaar
2001
Huidige bestemming
woonruimte
Onderhoud binnen
goed
Onderhoud buiten
goed
Voorzieningen
mechanische ventilatie, rolluiken, buitenzonwering, airconditioning, jacuzzi, rookkanaal, frans balkon, glasvezel kabel
Isolatie
dubbel glas, volledig geisoleerd, hr glas

Energie

Energielabel
A
Verwarming
cv ketel
Warm water
cv ketel, elektrische boiler eigendom
C.V.-ketel
gas gestookte combi-ketel uit 2016 van Remeha Calenta CW4, eigendom

Oppervlakten en inhoud

Woonoppervlakte
183 m²
Perceeloppervlakte
224 m²
Inhoud
571 m³
Bergruimte oppervlakte
8 m²
Buitenruimte oppervlakte
45 m²

Indeling

Aantal kamers
5
Aantal slaapkamers
4

Buitenruimte

Ligging
in woonwijk
Tuin
achtertuin met een oppervlakte van 74 m² en is gelegen op het zuiden

Garage / Schuur / Berging

Garage
geen garage
Parkeergelegenheid
openbaar parkeren, op eigen terrein
Schuur/berging
vrijstaand hout

Foto's

Locatie

Downloads

Meer informatie?