Achtersloot 34

Achtersloot 34

OUD-BEIJERLAND

verkocht

Ook uw woning of bedrijfspand succesvol verkopen? Neem dan contactmet ons op

Gratis waardebepaling

Omschrijving

Wonen in de geliefde wijk ‘Zoomwijck’, op een plek waar rust, comfort en gemak samenkomen. Deze verzorgde en duurzame tussenwoning is ideaal gelegen, op korte afstand van diverse voorzieningen die het bruisende Oud-Beijerland te bieden heeft. Met een praktische indeling, een zonnige achtertuin en 122 m² eigen grond is dit een fijne plek om thuis te komen.

Indeling

Begane grond
Entree/hal met meterkast en een nette toiletruimte voorzien van een zwevend toilet en fonteintje. De hal biedt toegang tot de inpandige berging en de gezellige living van de woning.

Bij binnenkomst in de knusse woonkamer treft men de trapopgang en een praktische trapkast. De kamer biedt voldoende ruimte aan een eetgedeelte en staat in directe verbinding met de open keuken. Middels een loopdeur is er toegang tot de diepe achtertuin.

De keuken is van meerdere gemakken voorzien, waaronder een 6-pits gasfornuis met afzuigkap, koel-/vriescombinatie, vaatwasser, oven en een moderne Quooker voor direct kokend water.

Eerste verdieping
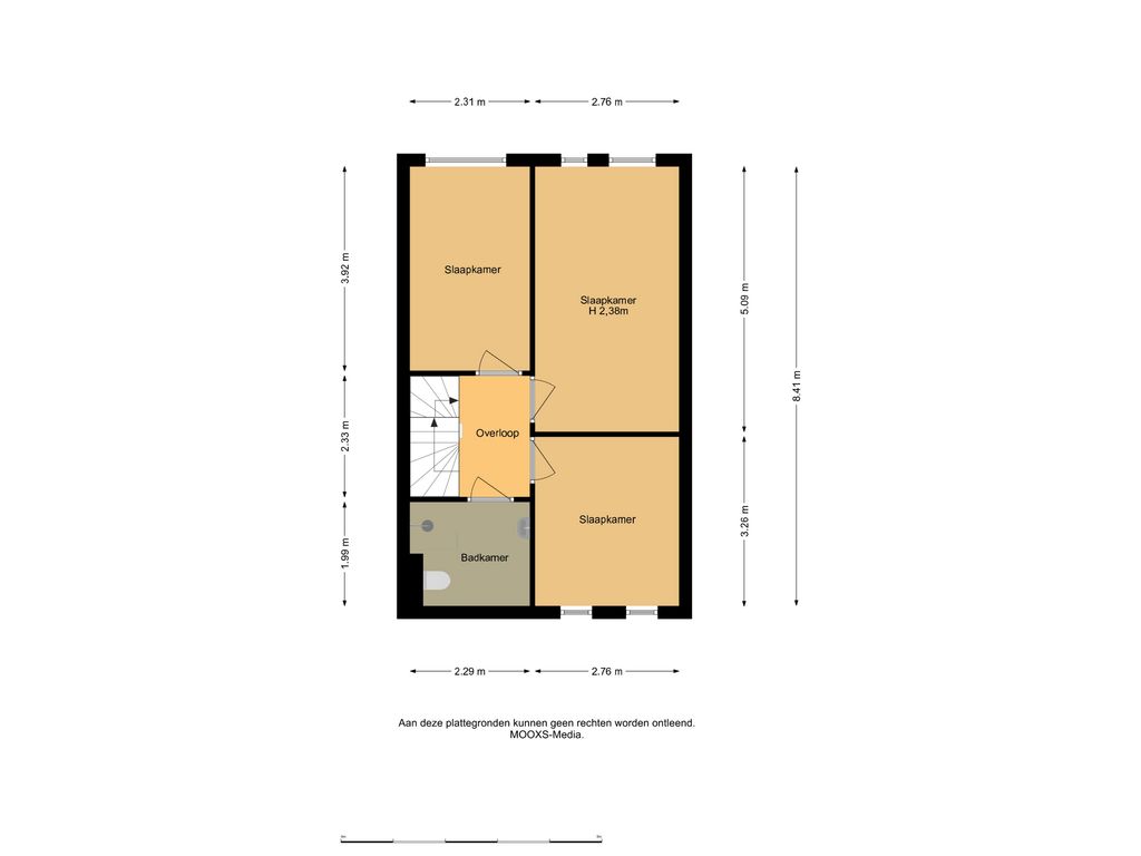
Via de overloop zijn 3 slaapkamers en de badkamer te bereiken. De hoofdslaapkamer bevindt zich aan de achterzijde van de woning. De andere slaapkamers zijn ingericht als kleedkamer en multifunctionele ruimte voor werk of hobby.

De volledig betegelde badkamer is voorzien van een wastafel, 2e toilet en inloopdouche. Ook zijn hier de aansluitingen voor de wasmachine en droger gesitueerd.

Tweede verdieping
Via een vaste trap bereikt men de voorzolder met volop bergruimte achter de knieschotten en de opstelplaats voor de cv-combiketel. Ook is er toegang tot een ruime 4e slaapkamer, die voorzien is van een dakraam.

Achtertuin
De zonnige, diepe achtertuin op het zuiden is keurig aangelegd met sierbeplanting, houten schuttingen en een waterkraan. Het houten vlonderterras biedt een ideale plek om in alle rust van de zon te genieten. Overigens is er dankzij de ligging van de woning vrij uitzicht, zowel aan de voor- als aan de achterzijde.

Afmetingen (ca.)
Voor de afmetingen verwijzen wij u graag naar de bijgevoegde plattegronden.

Bijzonderheden
Bouwjaar: 1981. Woonoppervlakte: 107 m². Perceeloppervlakte: 122 m². Inhoud: 330 m³.

• Energielabel A
• Cv-combiketel (Remeha HR107, 2023)
• Houten kozijnen met dubbele beglazing (HR-glas)
• Schilderwerk (2023)
• Volledige vloerisolatie
• Dak- en gevelisolatie
• Keuken (2017)
• Badkamer (ca. 2015)
• Zonnepanelen, 8 stuks, 410 Wp (2023)

Omgeving en ligging
Gelegen in een groene en rustige buurt, biedt Zoomwijck een aangename mix van ruimte, modern comfort en een sterk gevoel van gemeenschap. Binnen enkele minuten verbonden met in- en ontspanning: winkels, cafés, sportverenigingen en gezondheidsvoorzieningen liggen binnen handbereik.

Kadastrale gegevens
Gemeente Oud-Beijerland, sectie H, nummer 2307, groot 1 are en 22 centiares.
Volle eigendom.

Oplevering
In overleg.

Wij behartigen de belangen van de verkopende partij. Neem uw eigen NVM-aankoopmakelaar mee!

Deze informatie is door ons met de nodige zorgvuldigheid samengesteld. Onzerzijds wordt echter geen enkele aansprakelijkheid aanvaard voor enige onvolledigheid, onjuistheid of anderszins dan wel de gevolgen daarvan. Alle opgegeven maten en oppervlakten zijn indicatief. Van toepassing zijn de NVM voorwaarden.
Lees meer

Kenmerken

Overdracht

Status
verkocht
Aanvaarding
in overleg

Bouw

Soort woning
woonhuis
Soort woonhuis
eengezinswoning
Type woonhuis
tussenwoning
Aantal woonlagen
3
Bouwvorm
bestaande bouw
Bouwjaar
1981
Huidige bestemming
woonruimte
Onderhoud binnen
goed
Onderhoud buiten
goed
Voorzieningen
mechanische ventilatie, dakraam, glasvezel kabel, zonnepanelen, natuurlijke ventilatie
Isolatie
dakisolatie, muurisolatie, vloerisolatie, grotendeels dubbelglas, hr glas

Energie

Energielabel
A
Verwarming
cv ketel
Warm water
cv ketel
C.V.-ketel
gas gestookte combi-ketel uit 2023 van Remeha HR107, eigendom

Oppervlakten en inhoud

Woonoppervlakte
107 m²
Perceeloppervlakte
122 m²
Inhoud
330 m³
Inpandige ruimte oppervlakte
8 m²

Indeling

Aantal kamers
5
Aantal slaapkamers
4

Buitenruimte

Ligging
aan rustige weg, in woonwijk, vrij uitzicht
Tuin
achtertuin met een oppervlakte van 42 m² en is gelegen op het zuiden

Garage / Schuur / Berging

Garage
geen garage
Parkeergelegenheid
openbaar parkeren
Schuur/berging
inpandig

Foto's

Locatie

Downloads

Meer informatie?